85 corvette died, code 44
What else have you checked ?
1985-1991: ECM Codes
Code #12: Normal No Codes.
Code #13: Open Oxygen Sensor Circuit.
Code #14: Coolant Sensor Circuit Low.
Code #15: Coolant Sensor Circuit High.
Code #21: Throttle Position Sensor High.
Code #22: Throttle Position Sensor Low.
Code #23: Manifold Air Temperature Circuit High.
Code #24: Vehicle Speed Sensor.
Code #25: Manifold Air Temperature Circuit Low.
Code #32: EGR System Failure.
Code #33: Mass Air Flow Sensor High.
Code #34: Mass Air Flow Sensor Low.
Code #36: Mass Air Flow Sensor Burn-Off Function Fault.
Code #41: Cylinder Select Error.
Code #42: Electronic Spark Timing.
Code #43: Electronic Spark Control.
Code #44: Lean Exhaust indication.
Code #45: Rich Exhaust Indication.
Code #46: Vehicle Anti Theft Fault.
Code #51: Faulty Mem-Cal.
Code #52: Fuel Calpak Missing.
Code #52: (1990-91 Corvette Only): Engine Oil Temperature Sensor Low.
Code #53: System Over Voltage.
Code #54: Fuel Pump Circuit Low Voltage.
Code #55: Defective ECM.
Code #62: Engine Oil Temperature Sensor Circuit High.
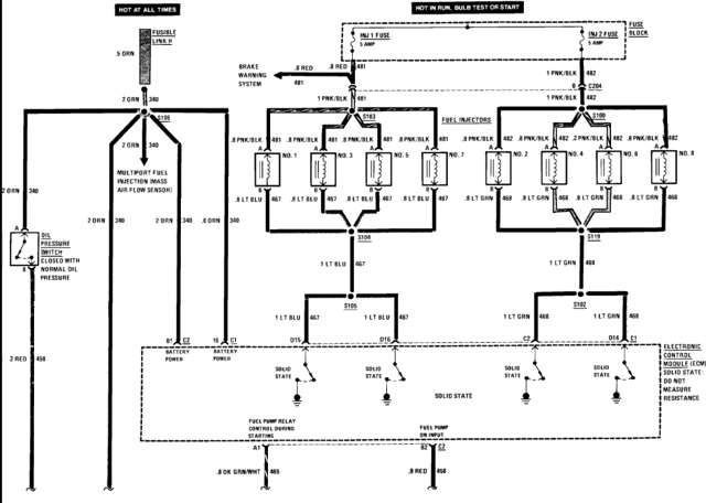
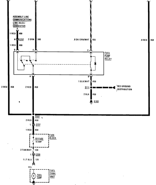
#44 lean exhaust.Possable solutions: Check wiring and connectors from oxygen sensor to the ECM. Check the ECM fround terminal. Check the fuel pressure. Replace the oxygen sensor.
Note that the 85 has a seperate ground for the oxygen sensor. This ground I believe is a orange wire. Ground does NOT go to sensor, but is grounded to the block.
Power should go back to the pump when in the start postion of the key and the ECM see's that you're trying to start the car. And should stay on when running.
The ECM send's the turn on signal to the fuel pump relay which in turn act's like a switch and keep's the load current away from the ECM.
Also worth noting is the fuel pump relay is tied into the oil psi. switch, it will not turn on unless there is enough oil psi.
Sound's confusing, but it's the best way I can explain it right now.
These diagrams may be of some help.


Check all of your fuse's with a test light yet?
Just because a fuse doesn't look blown doesn't mean it isn't.
The test light will also tell you if you even have power going to that fuse circuit or not, which helps a lot.
Last edited by Crzyfrlss1; May 8, 2010 at 10:16 PM. Reason: adding to post
The Best of Corvette for Corvette Enthusiasts
Well...I DID say it was confusing

Does this mean the pump wont stay energized if there is not enough oil psi. ?
I had a no-start condition like this once on a caddy with the same setup and traced it to a bad oil psi. switch., unplugged and jumpered the switch pigtail and it fired right up.
Last edited by Crzyfrlss1; May 8, 2010 at 11:37 PM.

Does this mean the pump wont stay energized if there is not enough oil psi. ?
I had a no-start condition like this once on a caddy with the same setup and traced it to a bad oil psi. switch., unplugged and jumpered the switch pigtail and it fired right up.
Regardless of the trouble codes, you say it runs fine. Some members have complained of rough idles in LS3's, thinking that something is wrong, when it is quite normal. My idle roughness varies a bit, but the car runs fine, no codes.
Trouble codes are a totally different animal.
How is your battery?
I've learned from personal experience, and from reading many threads on the forum, that many electrical problems can be traced back to a bad or marginal battery. Just because the car cranks over ok and seems to charge ok, doesn't mean that the battery is good. Needs to be checked with a load testing tool. A vom won't always catch a bad battery.
Check for bad connections, grounds, and high circuit resistance.






















