C6 Tech/Performance LS2, LS3, LS7, LS9 Corvette Technical Info, Internal Engine, External Engine, Tech Topics, Basic Tech, Maintenance, How to Remove & Replace
Sponsored by:
Sponsored by:

voltage issue

Thread Tools
 
Search this Thread
 
Old Dec 2, 2024 | 06:33 PM
  #1  
barrington7#We5's Avatar
barrington7#We5
Thread Starter
Cruising
 
Joined: Dec 2024
Posts: 12
Likes: 0
Default voltage issue

Have optima red top battery-8 years old; always keep on trickle when stored; no past issues

The Voltage indicator on dash reads 16 volts; has been running at this level for some time

Battery voltage not running= 12.6 volts

Battery voltage running =14.5 volts

Alternator output = 14.6 volts measured directly at unit

Vehicle running; voltage dash indicator reads 16 volts

Turn on lights, heater, no change in voltage reading

Rev engine to 2k; no voltage change

Any suggestions ??
Reply
Old Dec 2, 2024 | 07:36 PM
  #2  
C5 Diag's Avatar
C5 Diag
Moderator, Tech Contributor
Supporting Lifetime Gold
10 Year Member
Veteran: Air Force
Liked
Community Favorite
 
Joined: Sep 2013
Posts: 15,500
Likes: 3,999
From: Cape Coral, Florida
Default

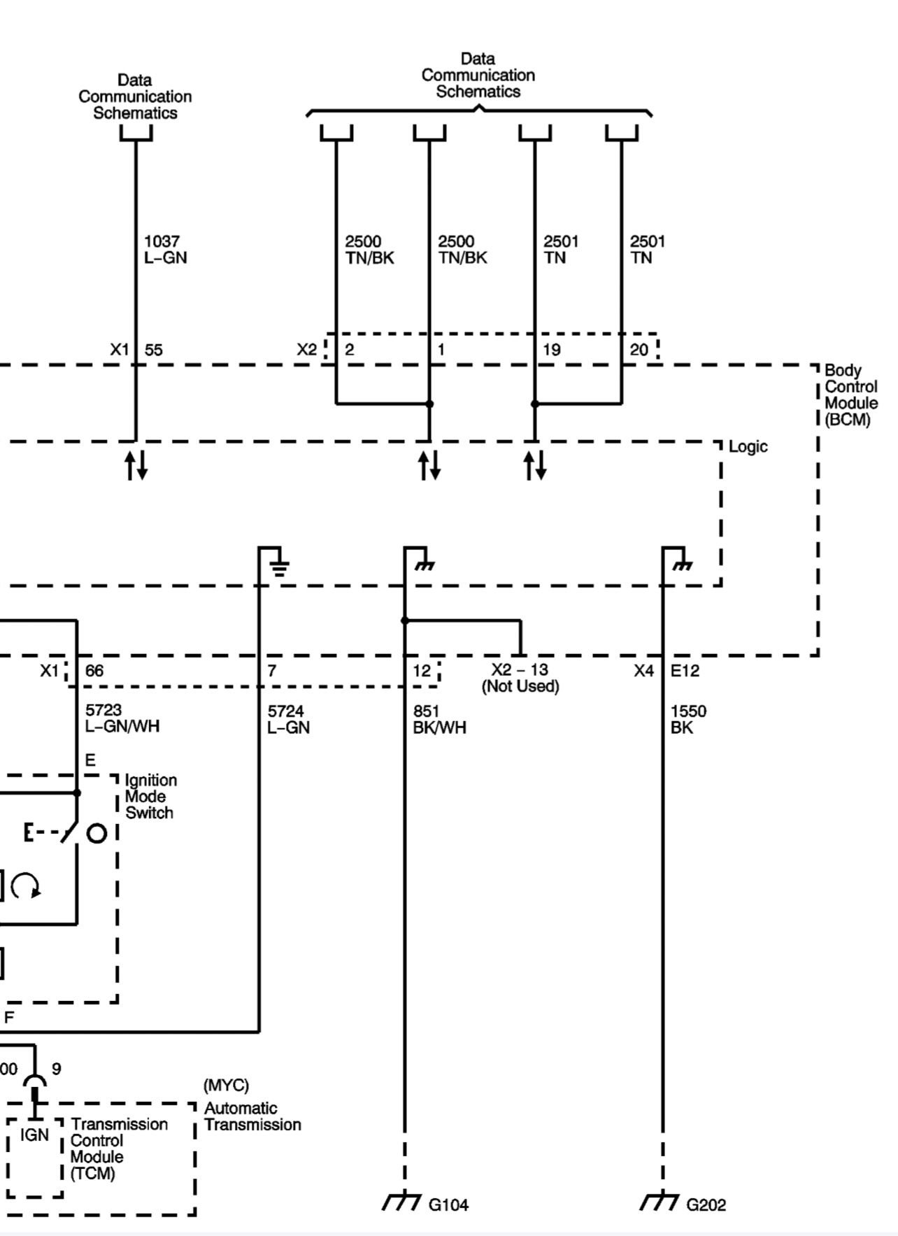
Welcome to the Forum…the only thing I can think of is that the IPC battery voltage is measured by the BCM and if the BCM ground is “elevated” that can raise the voltage…if you are charging at 14 volts and say the ground is at 2 volts that 14 volts will be elevated to 16…the 2 grounds are pin 12 J1 connector (black/white) and pin e12 on J4…seems your battery and charging voltage are OK with a 0.1 volt voltage drop on the positive side of the charging system…I would back probe at the BCM with engine running…you can also check both grounds…G202 and 104…G202 is base of right A pillar and 104 is under the battery tray…normally at 16 volts you would get a DIC message for high battery voltage…also helps if we know at least your model year.




Last edited by C5 Diag; Dec 2, 2024 at 07:57 PM.
Reply
Old Dec 2, 2024 | 07:55 PM
  #3  
C5 Diag's Avatar
C5 Diag
Moderator, Tech Contributor
Supporting Lifetime Gold
10 Year Member
Veteran: Air Force
Liked
Community Favorite
 
Joined: Sep 2013
Posts: 15,500
Likes: 3,999
From: Cape Coral, Florida
Default

Message says “GREATER” than 16 volts so you may need to see 16.1 ??



Reply
Old Dec 2, 2024 | 10:03 PM
  #4  
barrington7#We5's Avatar
barrington7#We5
Thread Starter
Cruising
 
Joined: Dec 2024
Posts: 12
Likes: 0
Default

vehicle is 2009 vette base model
should i be concerned with the voltage variance; and how do i repair ?
Reply
Old Dec 3, 2024 | 08:31 AM
  #5  
C5 Diag's Avatar
C5 Diag
Moderator, Tech Contributor
Supporting Lifetime Gold
10 Year Member
Veteran: Air Force
Liked
Community Favorite
 
Joined: Sep 2013
Posts: 15,500
Likes: 3,999
From: Cape Coral, Florida
Default

It shouldn’t be reading 16 volts and if your electrical experience is just checking voltage with a DVOM best to seek out an auto electric repair shop…you can remove the 4 connectors on the BCM 2 of which are lever lock and 2 bolted bolted in on the front and back of the BCM..you will have to remove the BCM to access X4…disconnect the battery and remove all 4 and then use some electrical contact cleaner like DeOxit and check for any type of corrosion or damage…reinstall all 3 and connect the battery and see what happens…if you had a factory level or equivalent scan tool I’m sure there are some voltage data PIDS you can observe in the BCM that might point to this high voltage.

Last edited by C5 Diag; Dec 3, 2024 at 09:45 AM.
Reply
Old Dec 3, 2024 | 08:38 AM
  #6  
C5 Diag's Avatar
C5 Diag
Moderator, Tech Contributor
Supporting Lifetime Gold
10 Year Member
Veteran: Air Force
Liked
Community Favorite
 
Joined: Sep 2013
Posts: 15,500
Likes: 3,999
From: Cape Coral, Florida
Default



Reply

Get notified of new replies

To voltage issue





All times are GMT -4. The time now is 08:22 AM.

story-0
Top 10 Most Explosive Corvettes Ever Made: Power-to-Weight Ratio Ranked!

Slideshow: The 10 most explosive Corvettes ever built based on power-to-weight ratio.

By Joe Kucinski | 2026-05-20 07:23:03


VIEW MORE
story-1
150 hp to 1,250 hp: Every Corvette Generation Compared by the Specs That Matter

Slideshow: From C1 to C8 we compare every Corvette generation by the numbers.

By Joe Kucinski | 2026-05-12 16:54:12


VIEW MORE
story-2
8 Coolest Corvette Pace Cars (and Replicas) of All Time

Slideshow: Some Corvette pace cars became collectible legends, while others perfectly captured the look and attitude of their era.

By Verdad Gallardo | 2026-05-11 09:50:51


VIEW MORE
story-3
Top 10 Corvette Engines RANKED by Peak Torque (70+ Years of Muscle!)

Slideshow: Ranking the top 10 Corvette engines by torque output.

By Joe Kucinski | 2026-05-05 11:58:09


VIEW MORE
story-4
Corvette ZR1X Will Be Pacing the Indy 500, And Could Probably Race, Too!

Slideshow: A Corvette pace car nearly matching IndyCar speeds sounds exaggerated, until you look at the numbers.

By Verdad Gallardo | 2026-05-04 20:03:36


VIEW MORE
story-5
Top 10 Corvettes Coming to Mecum Indy 2026!

Among a rather large group of them.

By Brett Foote | 2026-05-04 13:56:44


VIEW MORE
story-6
Top 10 C9 Corvette MUST-HAVES to Fix These C8 Generation Flaws!

Slideshow: the top 10 things Corvette owners want in the C9 Corvette

By Michael S. Palmer | 2026-04-30 12:41:15


VIEW MORE
story-7
10 Revolutionary 'Corvette Firsts' Most People Don't Know

Slideshow: 10 Important Corvette 'firsts' that every fan should know.

By Joe Kucinski | 2026-04-29 17:02:16


VIEW MORE
story-8
5 Reasons to Upgrade to an LS6-Powered Corvette; 5 Reasons to Stay LT2

Slideshow: Should you buy a 2020-2026 Corvette or wait for 2027?

By Michael S. Palmer | 2026-04-22 10:08:58


VIEW MORE
story-9
2027 Corvette vs The World: Every C8 vs Its Closest Competitor

Slideshow: 2027 Corvette lineup vs the world.

By Joe Kucinski | 2026-04-24 16:12:42


VIEW MORE