C1293 Code - Brake Pressure switch - Help Please
I have had this issue for a while, and replaced both switches (brake pressure and brake light) I have adjusted with the proper procedure and the code still sets. Sometimes I can attempt to screw the switch in one turn and it'll stay away for a little while and comes back...
There is one 2 wire connector that does not fit in the pressure switch, I'm not sure if it was in the previous one either - does anyone have the breakdown of the wire color and where it goes?
Any help would be appreciated
Thanks again!
Nick
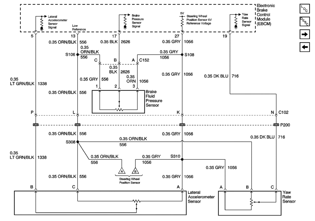
Circuit Description
The EBCM uses the input from the brake fluid pressure sensor for more accurate braking control during VSES.
Conditions for Running the DTC
C1292
The ignition is ON.
C1293
The vehicle speed is greater than 40 km/h (25 mph).
C1296
The ignition is ON for 1.2 seconds.
Conditions for Setting the DTC
C1292
The brake fluid pressure is less than 345 kPa (50 psi) for 3 deceleration cycles.
C1293
The brake fluid pressure is greater than 345 kPa (50 psi) for 2 consecutive ignition cycles.
C1296
One of the following conditions exists:
The brake fluid pressure sensor signal is greater than 4.9 volts for 2 minutes.
The brake fluid pressure sensor signal is less than 0.14 volts for 0.1 seconds.
Action Taken When the DTC Sets
The EBCM disables the VSES for the duration of the ignition cycle.
The Traction Control and Active Handling indicator turns ON.
The DIC displays the Service Active Handling message.
The ABS remains functional.
Conditions for Clearing the DTC
The condition for the DTC is no longer present and the DTC is cleared with a scan tool.
The EBCM automatically clears the history DTC when a current DTC is not detected in 100 consecutive drive cycles.
Diagnostic Aids
Find out from the driver under what conditions the DTC was set (when the DIC displayed the Service Active Handling message). This information will help to duplicate the failure.
The Snapshot function on the scan tool can help find an intermittent DTC.
A deceleration cycle consists of the following sequence:
The vehicle speed is greater than 24 km/h (15 mph).
The vehicle decelerates more than 8 km/h/second (5 mph/second) for 2 seconds.
The vehicle speed decelerates to less than 16 km/h (10 mph).
Test Description
The numbers below refer to the step numbers on the diagnostic table.
Tests for the proper operation of the circuit in the low voltage range.
Tests for the proper operation of the circuit in the high voltage range. If the fuse in the jumper opens when you perform this test, the signal circuit is shorted to ground.
Tests for a short to voltage in the 5 volt reference circuit.
Tests for a high resistance or an open in the low reference circuit.
Step
Action
Values
Yes
No
Schematic Reference: ABS Schematics
Connector End View Reference: ABS Connector End Views
1
Did you perform the ABS Diagnostic System Check?
--
Go to Step 2
Go to Diagnostic System Check - ABS
2
Install a scan tool.
Turn ON the ignition, with the engine OFF.
With a scan tool, observe the Brake Fluid Pressure Sensor Input parameter in the VSES data list.
Does the scan tool display that the Brake Fluid Pressure Sensor Input parameter is within the specified range?
0.14-4.9 V
Go to Diagnostic Aids
Go to Step 3
3
Turn OFF the ignition.
Disconnect the brake fluid pressure sensor connector.
Turn ON the ignition, with the engine OFF.
With the scan tool, observe the Brake Fluid Pressure Sensor Input parameter.
Does the scan tool indicate that the Brake Fluid Pressure Sensor Input parameter is less than the specified value?
0.14 V
Go to Step 4
Go to Step 10
4
Turn OFF the ignition.
Connect a 3 amp fused jumper wire between the 5 volt reference circuit of the brake fluid pressure sensor and the signal circuit of the brake fluid pressure sensor.
Turn ON the ignition, with the engine OFF.
With the scan tool, observe the Brake Fluid Pressure Sensor Input parameter.
Does the scan tool indicate that the Brake Fluid Pressure Sensor Input parameter is greater than the specified value?
4.9 V
Go to Step 5
Go to Step 8
5
Disconnect the fused jumper wire.
Measure the voltage between the 5 volt reference circuit of the brake fluid pressure sensor and the low reference circuit of the brake fluid pressure sensor.
Does the voltage measure less the specified value?
5 V
Go to Step 6
Go to Step 7
6
Turn OFF the ignition.
Disconnect the negative battery cable. Refer to Battery Negative Cable Disconnect/Connect Procedure in Engine Electrical.
Measure the resistance from the low reference circuit of the brake fluid pressure sensor to a good ground.
Does the resistance measure less than the specified value?
5 ohms
Go to Step 12
Go to Step 11
7
Test the 5 volt reference circuit of the brake fluid pressure sensor for a short to voltage. Refer to Circuit Testing and Wiring Repairs in Wiring Systems.
Did you find and correct the condition?
--
Go to Step 16
Go to Step 13
8
Test the 5 volt reference circuit of the brake fluid pressure sensor for the following conditions:
An open
A short to ground
A high resistance
Refer to Circuit Testing and Wiring Repairs in Wiring Systems.
Did you find and correct the condition?
--
Go to Step 16
Go to Step 9
9
Test the signal circuit of the brake fluid pressure sensor for the following conditions:
An open
A short to ground
A high resistance
Refer to Circuit Testing and Wiring Repairs in Wiring Systems.
Did you find and correct the condition?
--
Go to Step 16
Go to Step 13
10
Test the signal circuit of the brake fluid pressure sensor for a short to voltage. Refer to Circuit Testing and Wiring Repairs in Wiring Systems.
Did you find and correct the condition?
--
Go to Step 16
Go to Step 13
11
Disconnect the EBCM harness connector.
Install the J 39700 universal pinout box using the J 39700-300 cable adapter to the EBCM harness connector only.
Test the low reference circuit of the brake fluid pressure sensor for a high resistance or an open. Refer to Circuit Testing and Wiring Repairs in Wiring Systems.
Did you find and correct the condition?
--
Go to Step 16
Go to Step 13
12
Inspect for poor connections at the harness connector of the brake fluid pressure sensor. Refer to Testing for Intermittent and Poor Connections and Connector Repairs in Wiring Systems.
Did you find and correct the condition?
--
Go to Step 16
Go to Step 14
13
Inspect for poor connections at the harness connector of the EBCM. Refer to Testing for Intermittent and Poor Connections and Connector Repairs in Wiring Systems.
Did you find and correct the condition?
--
Go to Step 16
Go to Step 15
14
Replace the brake fluid pressure sensor. Refer to Brake Fluid Pressure Sensor Replacement .
Did you complete the repair?
--
Go to Step 16
--
15
Replace the EBCM. Refer to Electronic Brake Control Module (EBCM) Replacement .
Did you complete the repair?
--
Go to Step 16
--
16
Clear the DTCs using the scan tool.
Operate the vehicle within the Conditions for Running the DTC as specified in the supporting text.
Does the DTC reset?
--
Go to Step 2
System OK
-----------------------------------------------------------
Last edited by byronhunter; Mar 7, 2010 at 09:22 PM.
The Best of Corvette for Corvette Enthusiasts
I have been piddling around with this issue this past weekend, I have alldata, it passes the tests that I'm able to run,
It's intermittent - in the beginning I could keep the code from coming on if I kept the brake pedal depressed, I pulled both switches (under the dash) and reset the depth per the installation instructions - do you see 2 connectors on the lower switch? - I have a single connector that is dangling down that does not fit into the switch, but the bottom switch has a pair of terminals that are not connected
Any further help would be greatly appreciated..
It's now to the point that if I clear the code, it will not come back around till the next key cycle
Here is what I found. I followed the information on checking grounds. Found minor corrosion - did not solve issue.
Checked battery voltage. 12.66 at battery ignition off. 12.22 at battery ignition on. AHHA! So before I bough a new battery I have a super capacitor booster pack (highly recommended) It outputs 900 amp at 14.5-15 volts for 6 seconds) I hooked it up started car, disconnected it and went for a drive. (NO C1293). Turned engine off restarted 5 minutes later from existing battery C1293 came on before I'd gone 2 blocks! Why was my problem intermittent? Because I use a battery tender when the car is in my garage. If I started the car from garage without my foot on the brake and the parking brake on ( located in Canada daytime running lights are ON unless the parking brake is applied). The reduced battery load at startup on a marginal battery allowed the voltage check at startup to be OK!










